Search
Hot search keywords:
series DNE Mechanical C-Bend
cloum14.jpg

Kitchenware Industry

[Automation of an Enterprise in the Kitchenware Industry] Solution
In order to meet the production needs of intelligent manufacturing in enterprises, the whole production line is designed with the concept of intelligence, automation and unmanned, combined with international advanced equipment and production experience, and taking into account the current domestic production status, a set of automated and semi-automated production lines is specially made for enterprises.
Home·Solutions
Solution Overview

In order to meet the production needs of intelligent manufacturing in enterprises, the whole production line is designed with the concept of intelligence, automation and unmanned, combined with international advanced equipment and production experience, and taking into account the current domestic production status, a set of automated and semi-automated production lines is specially made for enterprises. On the basis of ensuring the business continuity and advancement of the business system, through scientific and reasonable planning and design and resource allocation and scheduling, the project goal is achieved with minimal economic investment as much as possible, so as to effectively control the overall cost of the project.

This program aims to improve the efficiency of customer sheet metal processing, in the batch of repetitive processes, mainly automated equipment, improve production efficiency, reduce personnel costs and management costs; in the connection of each process, first replace high cost collaborative software with labor, and complex tooling. With a unified standard system interface and communication protocol, the system can be compatible with similar equipment, and at the same time can adapt to the development of new technologies in the future. Hardware equipment adopts advanced level equipment and parts, and through advanced management experience and processing level, the performance and stability of the equipment supplied to users have reached the most advanced ranks in China.

According to customer requirements, this project is a smart factory project, with multi-column warehouse materials as the center to support laser automation, punch automation, safety guardrail, etc. The key components of the equipment are selected from foreign or Taiwan products, and the quality is guaranteed. Adopting teaching programming method, the operation is simple and easy to learn, and it can conveniently realize functions such as automatic loading and unloading.


厨具01.jpg
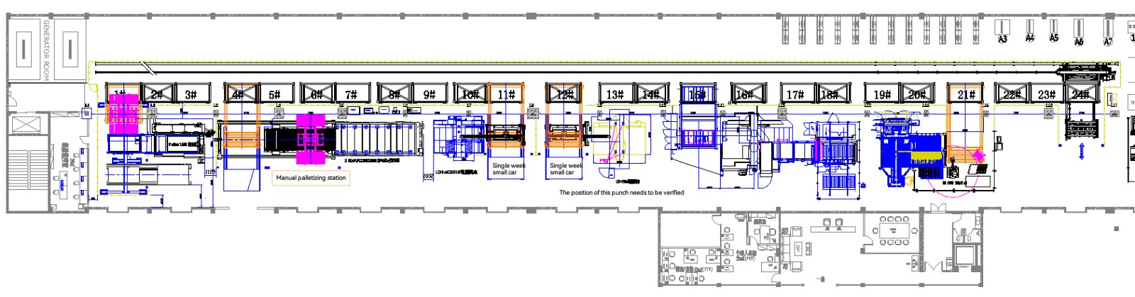
layout

 

 

 

 

Overview of Multi-column Storage Unit Scheme

This automation system is designed and developed according to customer needs, and can realize fully automatic intelligent warehousing (automatic warehousing, automatic outbound, laser cutting unit feeding) and laser cutting (automatic loading and unloading). By building an intelligent production system and networked distributed production facilities, the whole process of cutting is digitized and intelligent. The whole system has a good operation interface, which is convenient for operators to use.

The smart factory emphasizes that on the basis of the unified information management system within the enterprise, it can connect with the client side MES system, plan, schedule, produce, and achieve a high degree of matching between people and equipment. It can conduct real-time monitoring and data collection of the entire production process, organize production through data analytics, and allocate idle production resources more reasonably, improve production efficiency, and achieve mass customization production at a lower cost.

The automatic material storage consists of material tower, track stacker, inlet and outlet and special management software, which is connected with laser cutting unit and bending automation unit.

image.png
schematic diagram of the warehouse

image.png
Schematic diagram of stacker

image.png
Schematic diagram of plate warehousing station

image.png
schematic diagram of safety protection

厨具06.png
Scheme diagram of laser automatic loading and unloading unit


Process flow detail

According to the production plan, multi-column material warehouse workstations are used to centrally store and manage the plates and automatically send them to each laser cutting unit. The process flow is as follows: raw material warehousing --- material warehouse discharging --- automatic feeding --- laser cutting --- automatic unloading --- manual sorting

厨具07.png
Reference diagram of main components of laser loading and unloading unit
image.png
loading and unloading composite tooling

image.png
Vacuum suction cup feeding device (for reference only)
厨具10.png
Numerical control turret punch automation unit layout
厨具11.png
System Architecture Laser Cutting Information Flow

厨具12.png
Other equipment processing information flow
image.png
Graphic: Inbound Management

image.png
Figure: Outbound Management


niu_icon01.png
Request A Quote
Name*
E-mail*
Phone or WhatsApp*
Country*
City
Company
Cutting Material
Machine Type
Message
Submit Now
Thank you!
Thank you for your attention. We will contact you as soon as possible.
Confirm
Confirm
Product List
Submit information
Submit Now